Beech Lane, Woodcote

Bedrooms 4 | Bathrooms 2 | £775,000

Property Ref:
Bedrooms:
Bathrooms:
2593
4
2

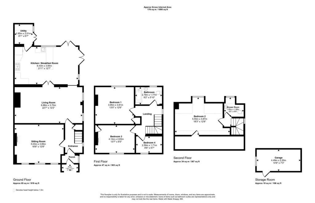
Charming Victorian four-bedroom home on a quiet rural lane, backing directly onto open fields yet moments from village life. Beautifully extended over three floors, the house offers generous and flexible living space, including a light-filled top floor and a recently refurbished shower room. Outside, there’s a long sunny garden, off-road parking and further potential (subject to the usual consents). EPC: tbc

Features

  • 21ft Kitchen/ Breakfast Room
  • Approx. 90ft sunny aspect rear garden
  • Off-road parking and detached garage
  • Quiet rural lane backing onto open fields
  • Refurbished top-floor shower room
  • Sold With No Onward Chain
  • Two reception rooms with open fireplace
  • Victorian four-bedroom home
Location is not the exact address of the listing