Hocketts Close, Whitchurch Hill, Reading

Bedrooms 4 | Bathrooms 2 | £830,000

Property Ref:
Bedrooms:
Bathrooms:
4
2

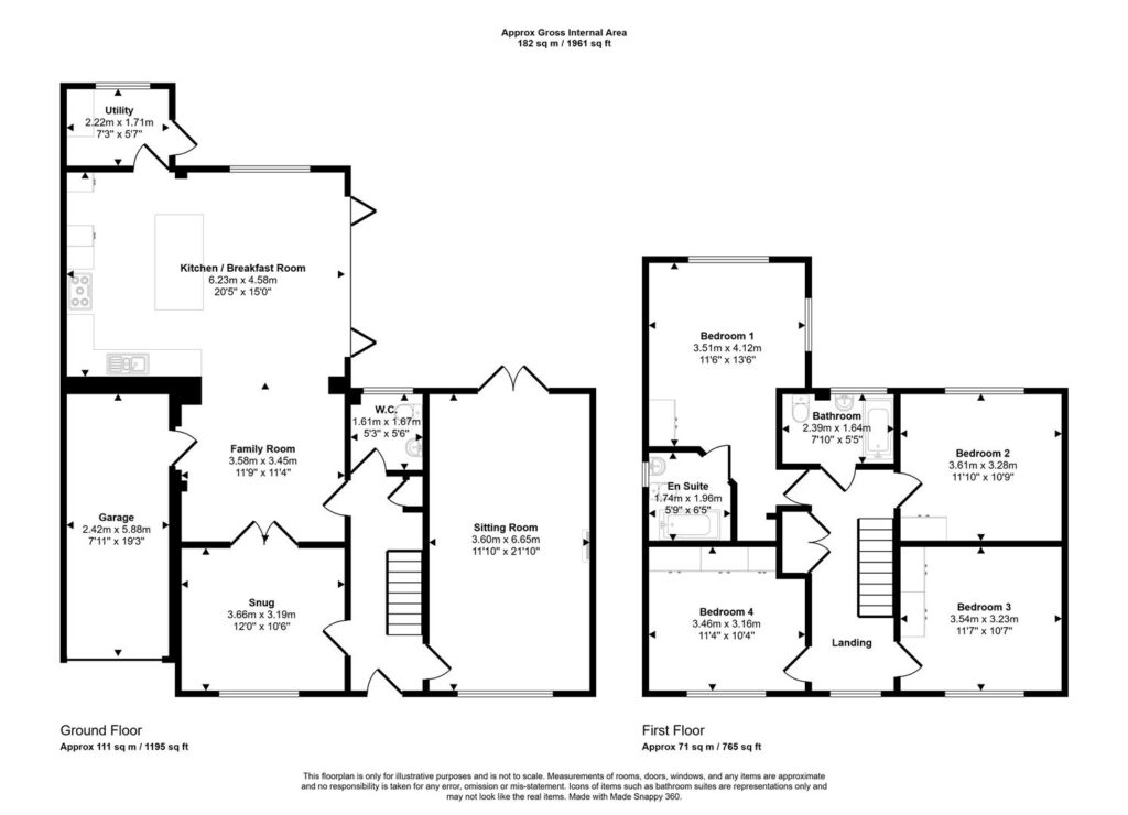
An exceptional four bedroom family home tucked away in a peaceful cul-de-sac, enjoying beautiful woodland views and offering an open plan kitchen/breakfast and two further reception rooms. EPC: D

Features

  • All new internal doors
  • Four Double Bedrooms
  • Garage
  • Highly sought after village location
  • Immaculately Presented
  • New boiler & Nest Smart Heating (September 2023)
  • New en-suite bathroom (2022)
  • New Fuseboard (October 2023)
  • New light switches, sockets and door handles throughout
  • Newly fitted cloakroom (2025)
Location is not the exact address of the listing