Mayfield Drive, Caversham, Reading

Bedrooms 4 | Bathrooms 2 | £550,000

Property Ref:
Bedrooms:
Bathrooms:
4
2

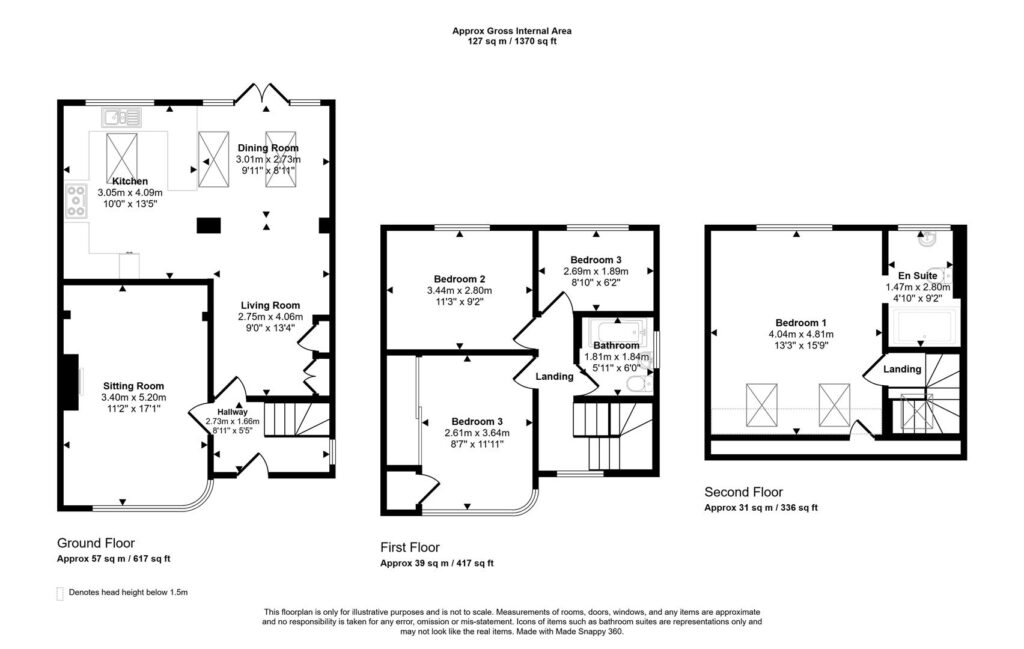
An extended and well presented four bedroom semi-detached house situated in a popular location in Caversham. EPC: tbc

Features

  • 1 mile from Caversham
  • 17ft sitting room
  • Four Bedrooms
  • Gas Fired Central Heating
  • Good sized garden
  • Large bedroom 1 with en-suite
  • Open plan kitchen/diner
  • Outbuilding with light and power, home office potential
  • Private and secluded rear garden
  • Two bathrooms
No EPC's have been uploaded for this property.

airport

Ace Cars (1.44 miles)
Location is not the exact address of the listing