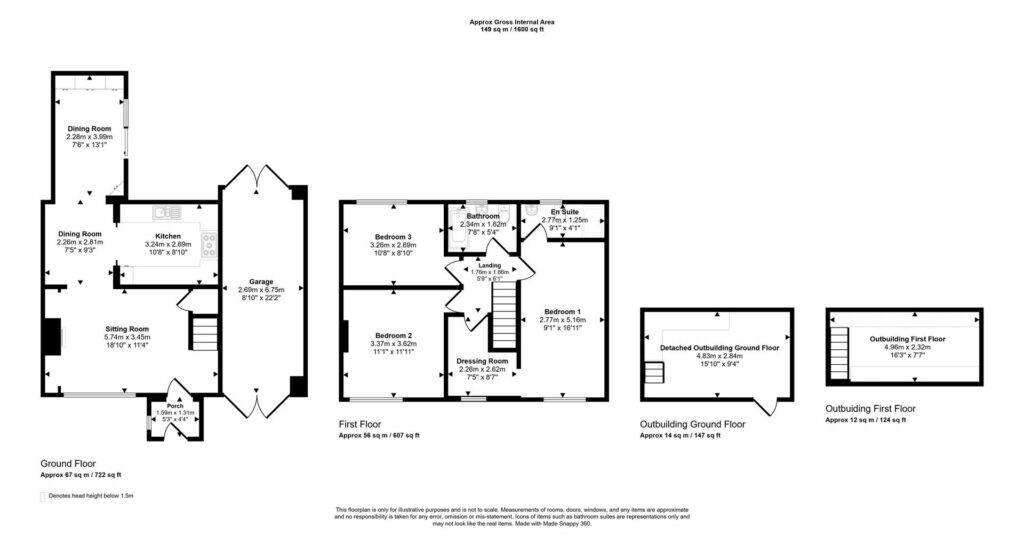
Ashford Avenue, Sonning Common

Bedrooms 3 | Bathrooms 2 | £450,000

Property Ref:
Bedrooms:
Bathrooms:
3
2

An extended and spacious three bedroom semi detached house, presented in good order and situated in a quiet location within easy reach of the village centre. EPC: tbc

Features

  • 16ft sitting room with open fire
  • Bedroom 1 with dressing room and en-suite shower room
  • Detached two storey outbuilding with potential for separate living accommodation
  • Driveway Parking
  • Garage
  • No Onward Chain
  • Potential for 4th bedroom
  • presented in good order
  • Spacious accomodation
  • Walking distance to village centre and Memorial Park
No EPC's have been uploaded for this property.
Location is not the exact address of the listing