Harpsden, Henley-On-Thames

Bedrooms 4 | Bathrooms 1 | £895,000

Property Ref:
Bedrooms:
Bathrooms:
4
1

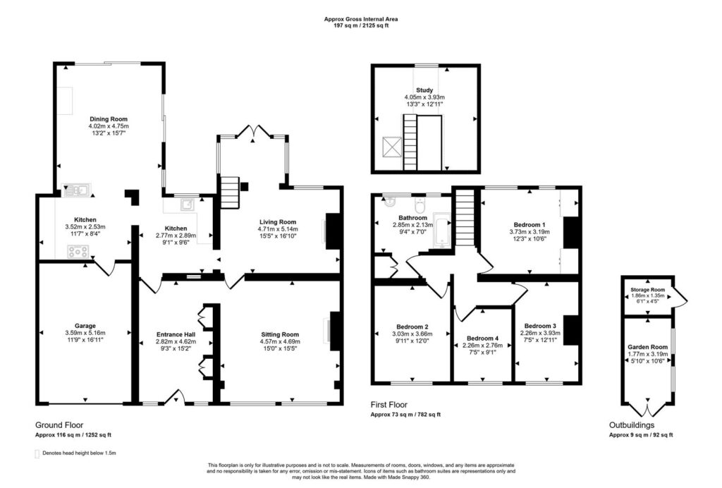
A four bedroom, three reception room home with a wealth of character and stunning views over open farmland set within the heart of this picturesque semi-rural village Harpsden, close to primary and secondary schools and the comprehensive amenities of Henley Town Centre.

Features

  • 23ft kitchen/dining room with doors onto garden
  • Character cottage
  • Delightful low maintenance gardens
  • Four Bedrooms
  • Garage
  • Log burner & separate open fire.
  • Seperate home office/garden room
  • Stunning views over open countryside
  • Three Reception Rooms
No EPC's have been uploaded for this property.
Location is not the exact address of the listing