Hazel Cottage, Farina Close, Sonning Common

Bedrooms 2 | Bathrooms 2 | £495,000

Property Ref:
Bedrooms:
Bathrooms:
2
2

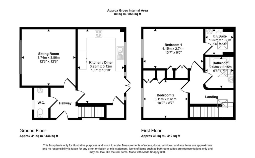
Recently built attractive two bedroom semi detached, energy efficient home, set in a small cul de sac of just four, in a highly sought after road, by respected local builders, Elegant Homes. EPC: B

Features

  • 13ft bedroom 1 with en-suite shower room
  • 17ft kitchen diner with doors onto garden
  • Boarded loft with ladder
  • Built in 2023 by highly respected local builder, Elegant Homes
  • Easily maintained garden
  • Easy walking to village centre & countryside
  • EV charging point
  • Highly energy efficient
  • Tucked away location
  • Underfloor heating to ground floor
Location is not the exact address of the listing