Orchard Avenue, Sonning Common

Bedrooms 4 | Bathrooms 2 | £550,000

Property Ref:
Bedrooms:
Bathrooms:
4
2

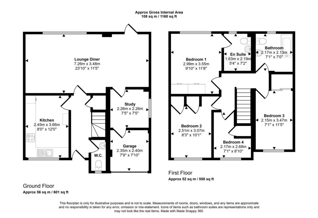
Recently extended four bedroom semi detached home, presented in excellent order, situated in a sought after road on the edge of the village, within easy walking of the village centre. EPC: D

Features

  • 24ft Lounge/ diner
  • Bedroom 1 with fantastic en-suite shower room
  • Delightful rear garden
  • Highly sought after location
  • Recently extended
  • Three Further Bedrooms
  • Two Reception Rooms
  • Two, recently installed bathroom suites
  • Walking distance to village centre and woodland
No EPC's have been uploaded for this property.
Location is not the exact address of the listing