Sedgewell Road, Sonning Common

Bedrooms 3 | Bathrooms 1 | £675,000

Property Ref:
Bedrooms:
Bathrooms:
3
1

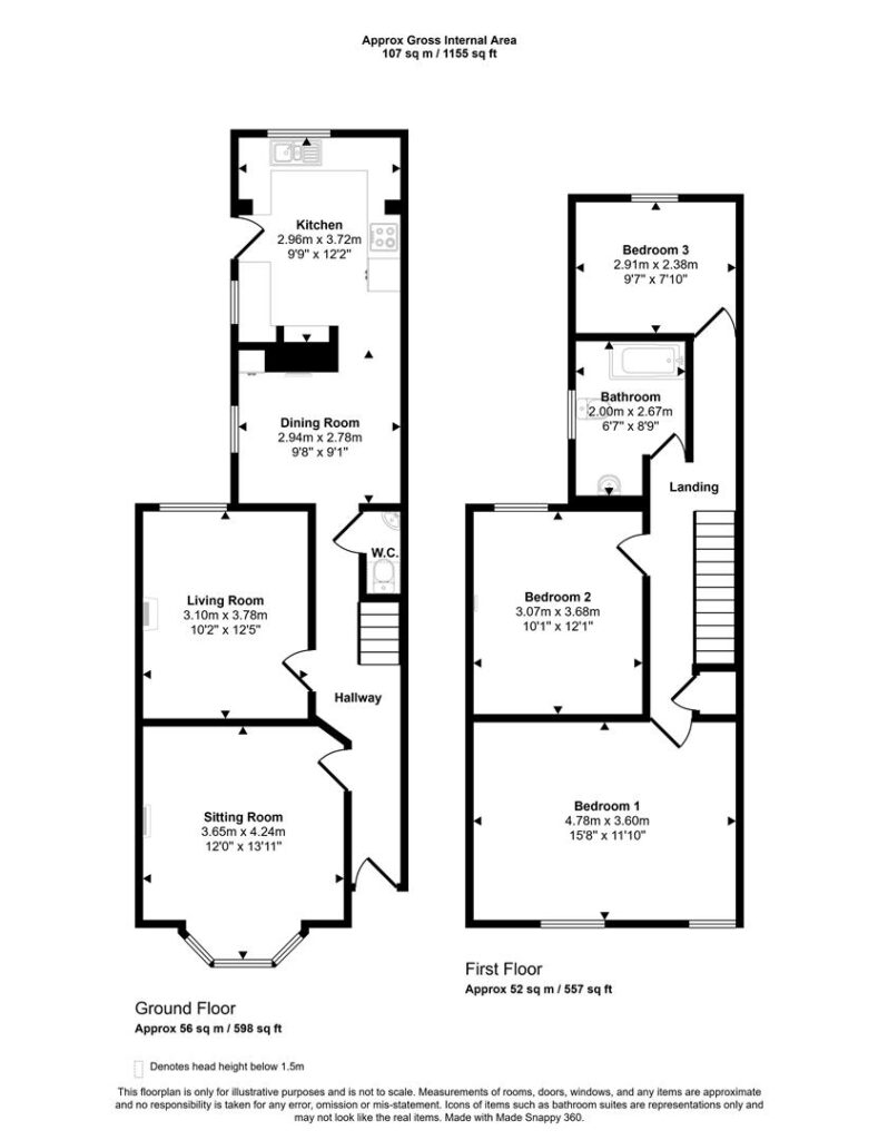
A beautiful Edwardian semi-detached home, retaining original features, set on a highly sought after road with a 130ft sunny aspect, rear garden and within easy reach of the village centre. EPC: D

Features

  • 130ft sunny aspect rear garden
  • 15ft dual aspect bedroom 1
  • A wealth of character
  • Easy access to Reading and Henley (Approx 5 miles)
  • Edwardian semi-detached family home
  • Further potential subject to usual consents
  • Garage and driveway parking
  • Three Double Bedrooms
  • Three Reception Rooms
  • Walking distance from village centre
Location is not the exact address of the listing